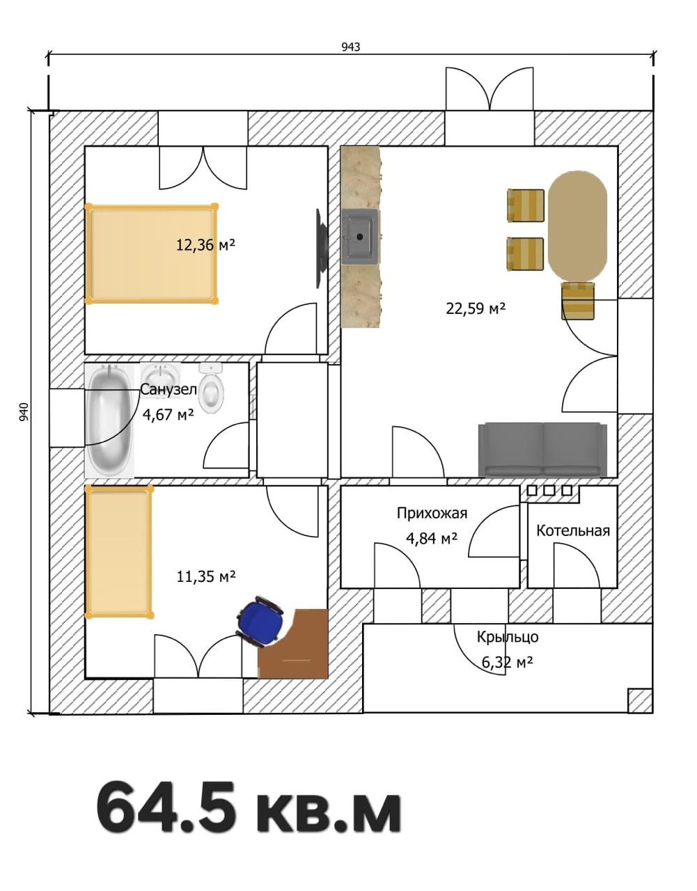
Дом, 64.5 м²
Загородные дома для семейного отдыха
ДОМ в ипотеку под 6%. За наличный расчет обсудим скидку
Идеальное место для жизни семьи за городом! Не упустите возможность стать обладателем этого дома в престижном районе со всей необходимой инфраструктурой!

Компания METROOM предлагает купить уютный и комфортабельный дом 64,5 кв.м на участке 7,5 сот. в д. Ерши.

О ДОМЕ:
- материал стен - газобетонные блоки и облицовочный кирпич. Газобетонные блоки, (производство г. Иваново): плотность блока D500, iширина 400 мм
- толщина стены 55 см
- высота потолка 3м
- фундамент гидроизолированный ленточный железобетонный с армированными буронабивными сваями, сваи через 1.5м, глубина 2,7, диаметр сваи 350мм
- крыша из металлочерепицы утепление эковата 250-300 мм
- увеличенные оконные блоки ПВХ, благодаря чему в дом поступает много дневного света

Сделан фундамент под гараж 6,4*9,4

Дом с комфортной удобной планировкой для семьи: две комнаты, просторная кухня - гостиная два, совмещенный санузел

Земельный участок прямоугольной формы, в ближайшее время будет выровнена поверхность участка. Размер участка и расположение на нем дома предполагает размещение гаража перед домом, бани, за домом есть место для сада и отдыха.

ПРЕИМУЩЕСТВА ДОМА:
- электричество
- стяжка пола
- канализация
- газ на линии
- скважина 45м

ИНФРАСТРУКТУРА:
Отличное месторасположение для тех кто хочет жить вдали от городской суеты, но имея необходимую для жизни инфраструктуру!
- есть школа (1,5км) и детский сад, что делает этот дом идеальным для семьи с детьми. К школе подвозит специальный школьный автобус, который собирает детей по утрам и развозит после уроков
- до остановки общественного транспорта 10 минут пешком
- есть магазины продуктов в 1 км от дома
- дом культуры, в котором работают кружки для детей и взрослых
- старинная церковь Живоначальной Троицы;
- рядом дом отдыха «Кстинино», где зимой есть лыжная трасса и прокат лыж; большой живописный Голодницкий пруд, Федяковский пруд, в 1,5 км. - пруд Кстининского дома отдыха.

ГАРАНТИИ И ПРЕИМУЩЕСТВА КОМПАНИИ METROOM:
-эксклюзивное право продажи;
-полное юридическое сопровождение сделки бесплатно
-помощь в получении ипотечного решения

Звоните, планируйте просмотр! Наш дом обязательно нужно посмотреть в живую, чтобы представить вашу будущую счастливую жизнь в нем!

Ссылка на объявление: https://met-room.ru/sale/salehouse/46853
6 200 000
Ермышева Екатерина Васильевна


Кировская область, Кирово-Чепецкий район, деревня Ерши,

Информация об объекте

Вид объектаДом Тип продажиСвободная продажа Площадь участка7.5 Площадь дома64.5 Материал стенГазобетон Год постройки2025 Количество этажей1 Количество спален2 СанузелВ доме ОтоплениеАвтономное газовое ГазЕсть ВодоснабжениеЕсть КанализацияЕсть ЭлектричествоЕсть